30 Aidan Street West Royalty, Prince Edward Island C1A 3J4
$409,900
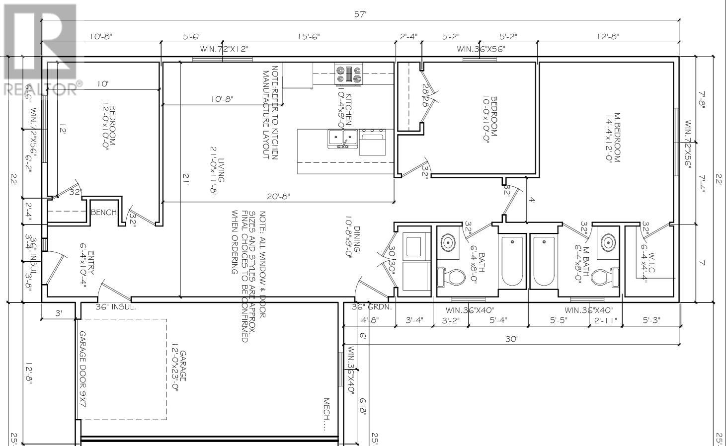
Currently under construction, 30 Aidan Street a sleek, modern semi-detached nestled in the sought after Windsor Park neighborhood. Offering 1,254 square feet of thoughtfully designed living space, this home is ideal for both homeowners and savvy investors. With three generous bedrooms, two full bathrooms, and a private courtyard perfect for relaxing or entertaining, comfort and convenience come together seamlessly. Step inside to a bright, open-concept floor plan featuring luxury vinyl flooring throughout the main areas as well as luxury vinyl tile in the bathrooms, providing long-lasting durability and effortless upkeep. The kitchen is a standout, combining style and function with quartz countertops and custom-built cabinetry boasting a modern flair. Best of all, all kitchen appliances are included. The large primary bedroom offers a spacious custom walk-in closet, and a private ensuite complete with a stylish shower and quartz-topped vanity. Finished with modern exterior styling and premium siding accents, this home delivers impressive curb appeal and protective covenants are in place to ensure long-lasting value. Perfectly positioned just minutes from UPEI, shopping, dining, coffeeshops, the Charlottetown Airport, and other amenities, you will enjoy a peaceful yet connected lifestyle. The property includes an 8-Year Lux Home Warranty. Please note: Tax and Assessment values are to be determined, HST included in price, rebate to be assigned to the Vendor. Listing agent is owner of property. (id:11866)
Property Details
| MLS® Number | 202601569 |
| Property Type | Single Family |
| Community Name | West Royalty |
| Amenities Near By | Park, Playground, Public Transit, Shopping |
| Community Features | Recreational Facilities, School Bus |
| Features | Paved Driveway |
Building
| Bathroom Total | 2 |
| Bedrooms Above Ground | 3 |
| Bedrooms Total | 3 |
| Appliances | Stove, Dishwasher, Microwave Range Hood Combo, Refrigerator |
| Basement Type | None |
| Construction Style Attachment | Semi-detached |
| Cooling Type | Air Exchanger |
| Exterior Finish | Vinyl, Wood Siding |
| Flooring Type | Vinyl |
| Foundation Type | Concrete Slab |
| Heating Fuel | Electric |
| Heating Type | Wall Mounted Heat Pump, Radiant Heat |
| Total Finished Area | 1254 Sqft |
| Type | House |
| Utility Water | Municipal Water |
Parking
| Attached Garage |
Land
| Acreage | No |
| Land Amenities | Park, Playground, Public Transit, Shopping |
| Landscape Features | Landscaped |
| Sewer | Municipal Sewage System |
| Size Irregular | 0.125 |
| Size Total | 0.125 Ac|under 1/2 Acre |
| Size Total Text | 0.125 Ac|under 1/2 Acre |
Rooms
| Level | Type | Length | Width | Dimensions |
|---|---|---|---|---|
| Main Level | Kitchen | 21. x 9. | ||
| Main Level | Living Room | 21. x 11.8 | ||
| Main Level | Foyer | 6.4 x 10.4 | ||
| Main Level | Primary Bedroom | 14.4 x 12 | ||
| Main Level | Ensuite (# Pieces 2-6) | 6.4 x 8. | ||
| Main Level | Bedroom | 12 x 10 | ||
| Main Level | Bedroom | 10 x 10 | ||
| Main Level | Bath (# Pieces 1-6) | 6.4 x 8. |
https://www.realtor.ca/real-estate/29294201/30-aidan-street-west-royalty-west-royalty
Interested?
Contact us for more information
14 Garfield Street
Charlottetown, Prince Edward Island C1A 6A5
(902) 628-7332
(902) 628-7332


